F3 iroda
ITC Sopron
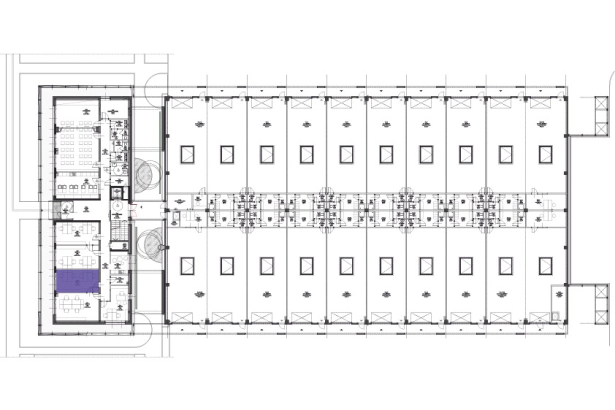
Sopron külterület 0390/183 hrsz.Az irodához tartozik
Az irodaház összesen 13 db irodát foglal magában. Az irodák mindegyike klimatizált. Az épület fűtési és hűtési hőenergiáját hőszivattyúk biztosítják, melyek padlófűtést és fan-coil hűtési rendszert működtetnek. Az irodaegységekhez szintenként közös használatú férfi és női mellékhelyiség, mosdó, valamint melegítő konyha (teakonyha) tartozik. Minden irodához fix parkolók tartoznak. Valamint biztosított az alábbi helyiségek térítésmentes használata 40 óra/év időtartamban: előadóterem: 69,09 m²; tárgyaló: 13,00 m²; tárgyaló: 27,64 m²
Bérelhető területek
Bérelhető területek









Találjon ideális helyet vállalkozásának!
Vegye fel velünk a kapcsolatot, és találja meg a vállalkozása igényeihez legjobban illő műhelyt vagy irodát!
Árajánlatkérés
